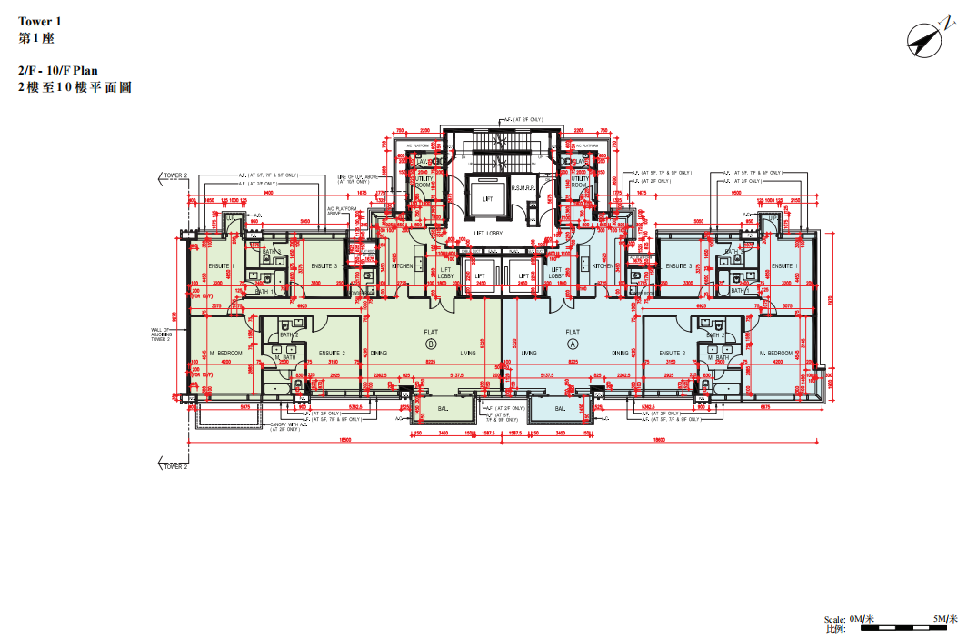
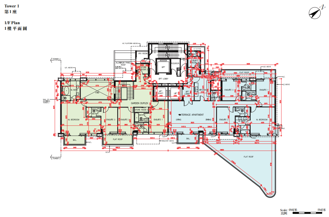
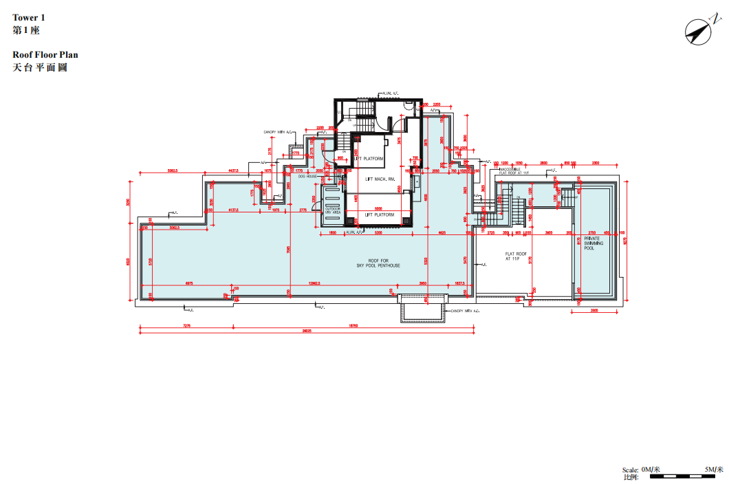
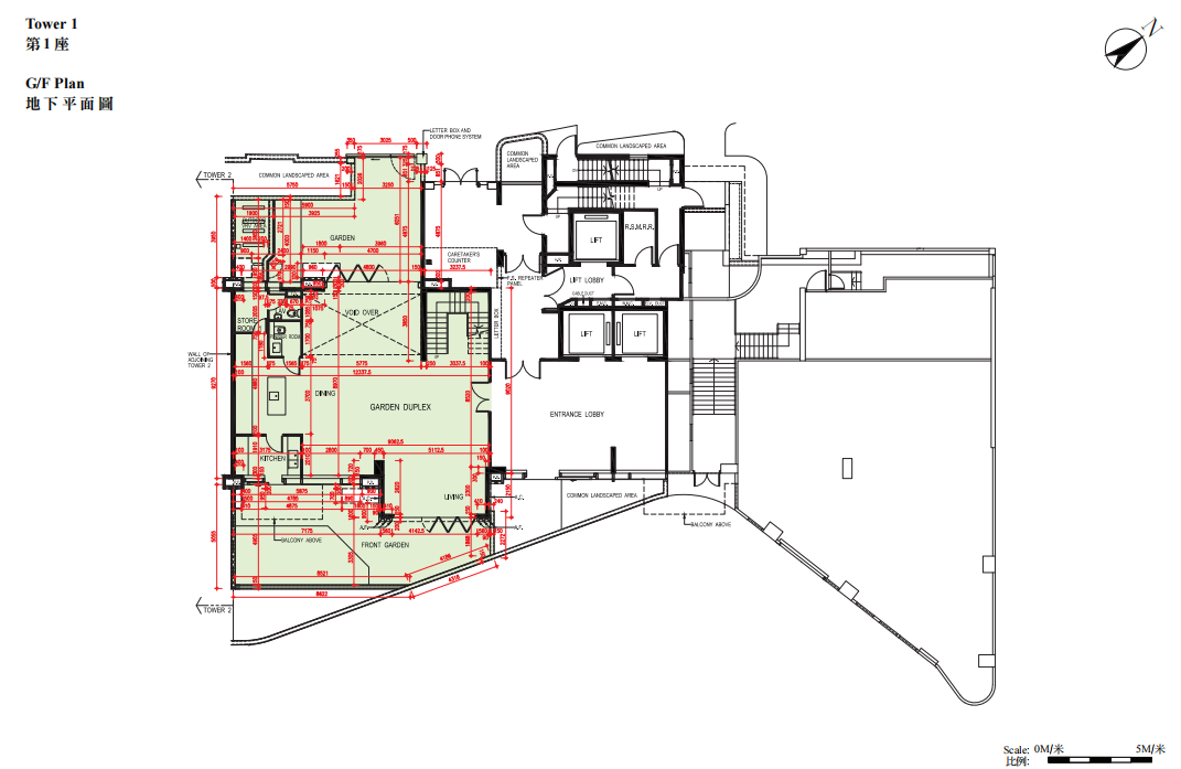
平面圖則
可視化展示樓棟佈局與戶型分佈,突出低密度與空間私密性,輔助客群選房決策
空間說明
公攤資訊:分層住宅公攤含電梯廳、走廊、設備間,實用率高,空間浪費少
特殊規劃:分層住宅 8 樓為景觀優質層,洋房均帶獨立入戶車道與私家花園
樓層規劃:不設 4 樓,標註電梯廳、私人電梯大堂、消防通道、每戶編號、公攤區域
可視化展示樓棟佈局與戶型分佈,突出低密度與空間私密性,輔助客群選房決策
公攤資訊:分層住宅公攤含電梯廳、走廊、設備間,實用率高,空間浪費少
特殊規劃:分層住宅 8 樓為景觀優質層,洋房均帶獨立入戶車道與私家花園
樓層規劃:不設 4 樓,標註電梯廳、私人電梯大堂、消防通道、每戶編號、公攤區域